前海恒昌科技大厦写字楼租赁热线:400-088-3336(写字楼租赁中心)
恒昌科技大厦东座丨集办公、酒店、商业为一体的综合体
(1)153米高楼:30000㎡的办公面积(塔楼17-30层、30000㎡的酒店(裙楼6-8层,塔楼4-16层)、7700㎡裙楼商业(裙楼1-4层)、3000㎡的地铁商业(地下负一负二层)
(2)奢阔办公空间:4.5米高标准层,达到市场甲级写字楼层高标准
(3)高速品牌电梯:16部日立原装进口电梯,最高时速达到6m/s,减少候梯时间,提高通勤效率
(4)三银LOW-E玻璃幕墙:隔热保温降噪,保证良好采光与舒适度
(5)智能停车:东座、西座共有538个地下停车位,分区域业态停车,精准管控
(6)集中供冷:周一至周六早8点至晚上8点
(7)地铁口无缝衔接:地铁出口可直通东座大堂,大大缩短通勤时间

办公标准层平面图(23层-30层)
酒店走廊

恒昌科技大厦西座丨办公
(1)153米高楼:70000㎡的办公面积
(2)奢阔办公空间:4.5米高标准层,达到市场甲级写字楼层高标准
(3)高速品牌电梯:16部日立原装进口电梯,最高时速达到6m/s,减少候梯时间,提高通勤效率
(4)三银LOW-E玻璃幕墙:隔热保温降噪,保证良好采光与舒适度
(5)智能停车:东座、西座共有538个地下停车位,分区域业态停车,精准管控
(6)集中供冷:周一至周六早8点至晚上8点
前海恒昌科技大厦写字楼租赁热线:400-088-3336(写字楼租赁中心)
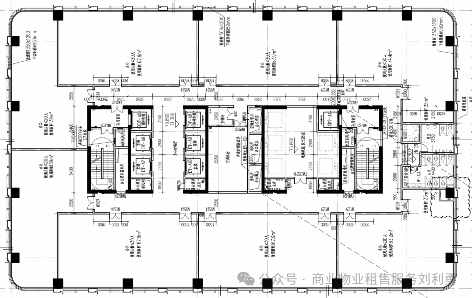
西座--标准层平面图

坐拥开阔视野
【东向丨远眺山景、高楼地标】眺望大小南山原生态自然风貌,后海地标-华润春笋、深圳湾一号。

【南向丨港口枢纽、文化交流】对望太子湾邮轮母港、妈湾港、哈罗公学、前海国际医院、国家深圳博物馆。

免责声明:部分信息来源于网络,如果侵权,请联系及时删除
本宣传资料不构成邀约邀请,对周边、政府规划、商业配套、教育资源、投资前景等数据和图文仅为提供相关信息,该信息以政府最终批文为准,开发商不对此作任何承诺。买卖双方的权利义务以双方签订的买卖合同约定及附件、实际交付为准,本公司保留对宣传资料修改的权利,敬请留意最新资料。联系号码:400-088-3336返回搜狐,查看更多